• Property Type Semi-detached bungalow
  • Bedrooms 2 beds
  • Bathrooms 1 bath
  • Receptions 1 reception
Previous Image
Next Image

Added 12/01/2026

Tollgate Avenue, Redhill, Surrey

Guide Price £475,000

Highlights

  • 2 Double bedrooms
  • Beautiful open plan living
  • Conservatory
  • Garage
  • Recently refurbished
  • No Onward Chain
Enquire

Property Description

This stunning two-double-bedroom semi-detached bungalow has been thoughtfully refurbished throughout, offering stylish modern living in a highly sought-after location. The true heart of this home has to be the bright and spacious open-plan living. kitchen area, providing a wonderful space for both relaxing and entertaining. The beautifully designed kitchen is fitted with integrated appliances, ensuring both style and convenience for the modern homeowner.

The conservatory is a versatile space that can be tailored to your needs, ideal for use as a relaxing chill-out area or a children's playroom. It opens out onto the private garden, seamlessly blending indoor and outdoor living. The rear garden, mostly laid to law, has rear access leading to your en-bloc garage. To the front is a recently laid block paved driveway offering private parking for numerous cars.

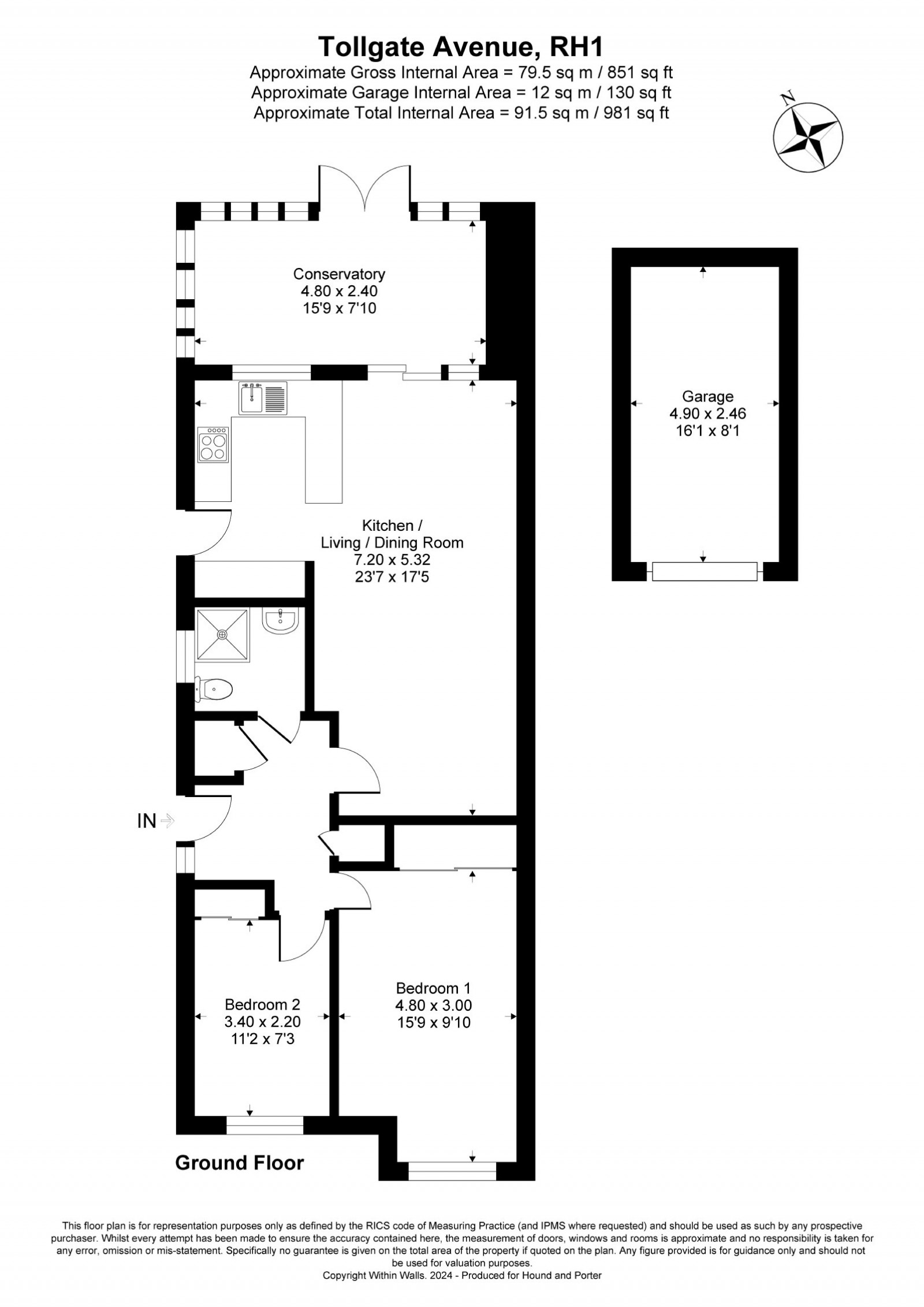
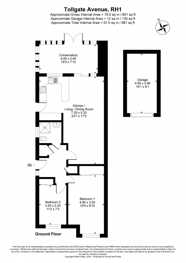
Floorplan

Floorplan for Tollgate Avenue, Redhill, Surrey

Video Tour

Invalid video URL

Map

EPC

EPC for Tollgate Avenue, Redhill, Surrey

Transport

Enquire

Tollgate Avenue, Redhill, Surrey

"*" indicates required fields

This field is for validation purposes and should be left unchanged.
This field is hidden when viewing the form
This field is hidden when viewing the form

PDF

Download